СТРОИТЕЛЬСТВО
ЧАСТНЫХ ДОМОВ
Выбирая услугу «строительство домов» в Dream House, можете быть уверены, что финальный результат полностью будет соответствовать вашим лучшим ожиданиям. Наша компания приступит к работе только после того, как будут учтены все пожелания клиента до мельчайших деталей, учитывая состав его семьи, увлечений и образа жизни, будет согласован и детально проработан проект дома, его место расположение, и почва на которой будет построен дом.
|
Дом 160 м.кв. в современном Европейском стиле. Контрастная архитектура и современная концепция комфортного проживания делают этот дом настоящим домом мечты. Двускатная крыша со свесом гармонично сочетается с плоскими крышами на фронтоне, это создает современную интерпретацию Европейского стиля загородного дома. |
![]() |
На первом этаже расположена просторная гостиная и столовая с открытой кухней, которые являются сердцем дома и впечатляют своей просторной планировкой с выходом на задний двор с террасой. Также на первом этаже расположены санузел, гостевая спальня или кабинет (по желанию заказчика) и котельная с отдельным входом.
Лестница с панорамным остеклением, ведет на верхний этаж, где еще одной изюминкой, является главная спальня со встроенной гардеробной и прямым доступом в ванную комнату и две просторных помещения, которые можно использовать как спальни или детские комнаты. А горизонтально расположенные окна и панорамное остекление наполняют комнаты дополнительным естественным светом и придают ощущение легкости и воздушности.
Планировка этажей может быть изменена в зависимости от пожелания заказчика.
Фундамент: утепленная шведская плита 300мм с ребрами жесткости 600мм;
Стены: толщина 300мм, газобетонный блок D500;
Фасад: утепление ПП 50мм + фасадная штукатурка цвет белый и графит;
Внешние откосы и обрамление окон: 3D рамой выполнены из металлопрофиля цвет графит;
Остекление: Окна ПВХ 70мм с ламинацией цвет антрацит;
Стеклопакеты мультиплекс: энергоэффективные, светоотражающие;
Перекрытия: ЖБ плиты 220мм и монолит;
Высота потолков первого этажа: 3,4 м
Кровля: Металлочерепица + утепление 200мм. цвет графит;
Сроки реализации проекта: 2-3 месяца.
Понравился проект, оставьте заявку
|
Одноэтажный дом в стиле Шале 224 кв.м. Стиль этого дома можно определить как современный шале за счет большого количества панорамных окон. В плане прослеживается основная планировочная ось, а сам дом состоит из нескольких функциональных блоков, которые формируют пространство большой кухни-гостиной с выходом на видовую террасу и отдельным кабинетом, и зону отдыха со вспомогательными помещениями. |
|
Габариты: 16,5x13,6 м
Потолок на 1 этаже: 2.6-4.5 м
ПЛАН ЭТАЖА
Кухня-Гостиная – 41,34 кв.м.
Кабинет – 6,5 кв.м.
Терраса – 58,88 кв.м.
Холл – 16,97 кв.м.
Санузел – 4,37 кв.м.
Тех. Помещение (Котельная) – 6,9 кв.м.
Спальня – 16,66 кв.м.
Мастер-Спальня – 15,18 кв.м. + гардероб – 4,06 кв.м. + санузел – 5,86 кв.м.
Гардероб – 2,04 кв.м.
Кладовая – 3,50 кв.м.
Гостевой Кабинет – 14,11 кв.м.
Крыльцо – 12,48 кв.м. кв.м.
Планировка этажей может быть изменена в зависимости от пожелания заказчика.
Фундамент: Железобетонные забивные сваи сечением 20x20 см длиной 3 метра из бетона высшего качества
Стены: из клееного бруса 200+180 мм.
Остекление: Окна ПВХ 70мм с ламинацией;
Стеклопакеты мультиплекс: энергоэффективные, светоотражающие;
Высота потолков: 2,6 – 4,5 м
Кровля: металлочерепица + утепление 200мм.;
Сроки реализации проекта: 2-3 месяца.
Понравился проект, оставьте заявку
|
Загородный дом в стиле Хай-тек площадью 380 кв.м. Современная минималистичная архитектура, две большие террасы, панорамные окна двухэтажного дома в стиле хайтек, с кухней-гостиной, 4 спальнями, кабинетом, гардеробными собственной сауной – это место притяжения для Вас и Вашей семьи. Продуманный до мелочей интерьер, уютное и комфортное расположение помещений создают неповторимое ощущение гармонии и уюта. |
|
На первом этаже расположена просторная гостиная с открытой кухней и панорамным остеклением, имеющая собственный выход террасу и отдельная кухня-кладовка расположенная непосредственно за стеной кухни-гостиной. Так же на первом этаже расположились кабинет, котельная, гладильная с постирочной, просторный холл с гардеробной и гостевой санузел с сауной.
На втором этаже прекрасно расположились, две просторные мастер-спальни с собственными санузлами, гардеробными, одна из которых имеет выход на большую террасу, и две спальни с собственными сан узлами.
ПЛАН 1-го этажа
Гостиная с открытой кухней – 68,7 кв.м.
Терраса – 26,4 кв.м.
Кхня-кладовая – 7,5 кв.м
Холл – 16,6 кв.м.
Санузел с сауной – 11,5 кв.м.
Гардеробная – 5,8 кв.м.
Котельная – 8 кв.м.
Кабинет – 18 кв.м.
Гладильная-постирочная – 5,4 кв.м.
ПЛАН 2-го этажа
Мастер-спальня 1 - 23,3 кв.м. + гардеробная – 6 кв.м. + санузел – 7.9 кв.м. + терраса 30 кв.м.
Мастер-спальня 2 – 17,5 кв.м + гардеробная – 3,7 кв.м. +санузел – 4,1 кв.м.
Спальня 2 – 18,7 кв.м. + санузел – 4.1 кв.м.
Спальня 3 -18,2 кв.м. + санузел -4,2 кв.м.
Холл – 14,6 кв.м.
Планировка этажей может быть изменена в зависимости от пожелания заказчика.
Фундамент: утепленная шведская плита 300мм с ребрами жесткости 600мм;
Стены: толщина 300мм, газобетонный блок D500;
Внутренние несущие стены и перегородки: газобетонные блоки;
Фасад: штукатурка (с утеплителем 50 мм.) + термо-панели (с клинкерной плиткой) + дерево;
Остекление: Окна ПВХ 70мм с ламинацией цвет графитит;
Стеклопакеты мультиплекс: энергоэффективные, светоотражающие;
Перекрытия: ЖБ плиты 220мм и монолит;
Высота потолков первого и второго этажей: 3,4 м
Кровля: покрытие мембрана
Сроки реализации проекта: 3-4 месяца.
Понравился проект, оставьте заявку
|
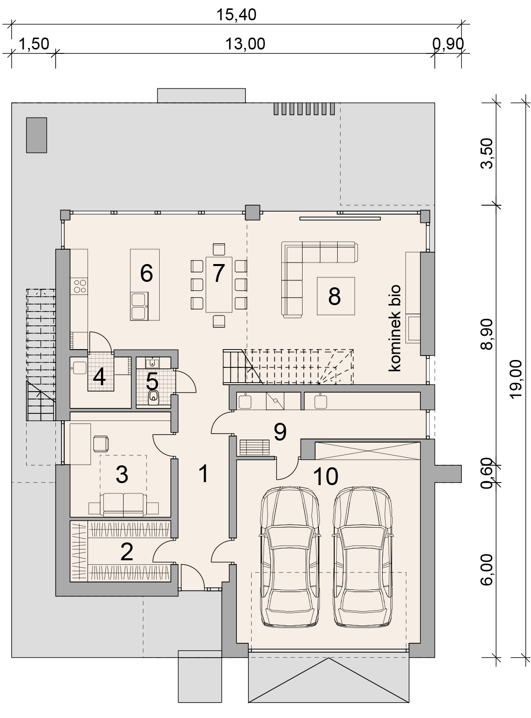
ДОМ в стиле современного минималистичного БАРНХАУСА. Первый и второй этажи имеют большое количество панорамных окон, что является одной из его главных особенностей. Фасады дома гармонично сочетают материалы: бетон, стекло, металл и дерево. Облицованный фальцем второй этаж парит над каменным контуром первого. |
|
Внутреннее пространство дома зонируется функциональными блоками, что помогает создать идеальную среду с разными сценариями жизни в доме.
ПЛАН 1 ЭТАЖА
Полезная площадь 108,88 + 41,57 м2
1. Коридор 13,67 м2
2. Гардероб 7.12 м2
3. Офис 12,44 м2
4. Кладовая 3,71 м2
5. Туалет 2,09 м2
6. Кухня 13,65 м2
7. Столовая 13,06 м2
8. Гостиная 31,80 м2
9. Хозяйственное помещение 11,33 м2
10. Гараж 41,57 м2
ПЛАН 2 ЭТАЖА
Полезная площадь 87,31 м2
1. Коридор 11,16 м2
2. Ванная комната 8,49 м2
3. Мир 15,86 м2
4. Комната 2 16,86 м2
5. Гардероб 7,18 м2
6. Ванная комната 2 9,73 м2
7. Спальня 18,03 м2
Понравился проект, оставьте заявку
|
1. Полезная площадь |
196.19 м² |
|
2. Дополнительное пространство |
41,57 м² |
|
3. Общая площадь |
380,14 м² |
|
4. Площадь застройки |
191,08 м² |
|
5. Чистый объем |
925.00 м³ |
|
6. Общий объем |
1352.00 м³ |
|
7. Высота здания |
8.70м |
|
8. Высота стенки на уровне колена |
1,90м |
|
9. Угол наклона крыши |
30° |
|
10. Высота помещения |
3,15; 4.40м |
|
11. Минимальные размеры участка |
22 х 27,5 м |
|
1. Ленточные фундаменты |
железобетон |
|
2. Фундаментные стены |
бетонные блоки, утеплитель из экструдированного пенополистирола XPS |
|
3. Внешние стены |
Керамический блок Porotherm толщиной 30 см Wienerberger, изоляция: полистирол Termonium/минеральная вата Isover |
|
4. Несущие внутренние стены |
Керамические блоки Porotherm Dryfix от Wienerberger толщиной 25см |
|
5. Перегородки |
Керамические блоки Porotherm Dryfix от Wienerberger толщиной 11,5 см |
|
6. Потолок |
железобетон |
|
7. Конструкция крыши |
деревянная, стропильная система, плоская крыша, утеплитель Isover из минеральной ваты |
|
8. Кровельное покрытие |
Листовой металл |
|
9. Фасады |
фасадные панели, силиконовая штукатурка |
|
10. Окна и двери |
алюминий от Aluprof |
|
11. Метод нагрева |
Газ под полом; воздушный тепловой насос |
|
12. Вентиляция |
Механический с рекуперацией |

Первый этаж
|
Полезная площадь |
108,88 + 41,57 м2 |
|
1. Коридор |
13,67 м2 |
|
2. Гардероб |
7.12 м2 |
|
3. Офис |
12,44 м2 |
|
4. Кладовая |
3,71 м2 |
|
5. туалет |
2,09 м2 |
|
6. Кухня |
13,65 м2 |
|
7. Столовая |
13,06 м2 |
|
8. Гостиная |
31,80 м2 |
|
9. Хозяйственное помещение |
11,33 м2 |
|
10. Гараж |
41,57 м2 |

Пол
|
Полезная площадь |
87,31 м2 |
|
1. Коридор |
11,16 м2 |
|
2. Ванная комната |
8,49 м2 |
|
3. Мир |
15,86 м2 |
|
4. Комната 2 |
16,86 м2 |
|
5. Гардероб |
7,18 м2 |
|
6. Ванная комната 2 |
9,73 м2 |
|
7. Спальня |
18,03 м2 |
|
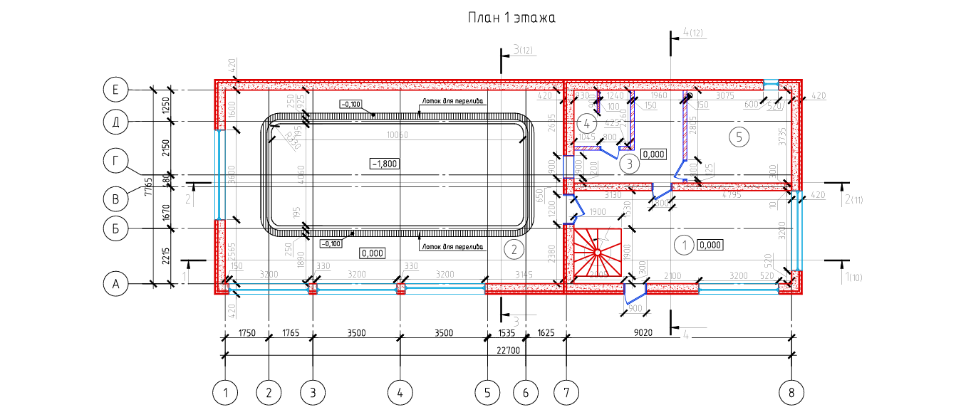
Трех уровневый СПА КОМПЛЕКС с бассейном, в Современном Классическом стиле.
Общая площадь составляет 437 кв.м. На первом этаже разместились просторная зона отдыха с отдельным входом в бассейн. Зона парения с душевыми и санузлом так же имеют отдельный вход в зону бассейна. Чаша бассейна перепадом глубины от 1,4 м до 2.2 м и размером 10 метров на 4 метра. |
|
Две раздевалки мужская и женская, что создает дополнительный комфорт для больших компаний. Большое количество панорамных окон в зоне бассейна и зоне отдыха создают воздушность и облегчают конструктив дома.
Высота потолка в зоне бассейна 4,5 м.
На втором этаже предусмотрена зона для персонала с отдельным входом.
На цокольном этаже расположена техническая часть для обслуживания бассейна и два просторных помещения – бильярдная и кладовая.
При отделке Фасада использовалась клинкерная плитка и натуральный камень. Кровля – мягкая черепица.
Остекление Brusbox 70, с энергоэффективным стеклопакетом Мультиплекс.
ПЛАН 1 ЭТАЖА
Зона бассейна – 90 кв.м.
Зона отдыха – 25,3 кв.м.
Парная - 12,6 кв.м.
Коридор 1 – 5 кв.м.
Санузел – 2,5 кв.м.
Раздевалка с душевой 1 – 5,5 кв.м.
Раздевалка с душевой 2 – 5,5 кв.м.
Коридор 2 – 3,5 кв.м.
ПЛАН 2 ЭТАЖА
Кухня-гостиная – 16 кв.м.
Санузел – 2,5 кв.м.
Спальня – 18 кв.м.
Кладовка – 7 кв.м.
ПЛАН ЦОКОЛЯ
Зона под чашей бассейна 90 кв.м.
Кладовая – 33,75 кв.м.
Бильярдная - 33,75 кв.м.
|
Дом 180 м.кв. Проект двухэтажного дома в стиле БАРНХАУС площадью 180 кв.м. — это не большой семейный дом с террасой. Необычная, привлекающая внимание форма фасада — результат объединения здания с террасой Пергола, а сочетание современных элементов и материалов на фасаде и кровле с натуральным камнем и деревом обеспечивает уникальное слияние двух миров, создавая гармонию и уют. Интерьер дома продуман и понятен, а помещения комфортны и эргономичны. |
|
На первом этаже расположена просторная гостиная с открытой кухней и панорамным остеклением имеющая собственный выход террасу, спальня, холл с санузлом, котельная и прихожая с крыльцом.
На втором этаже отведено место для просторной мастер-спальни с собственным санузлом и гардеробной, двух спален с выходом на балкон, холла и отдельного санузла с ванной.
ПЛАН 1 ЭТАЖА
Гостиная с открытой кухней – 26,47 кв.м.
Терраса – 26,74 кв.м.
Холл – 13,23 кв.м.
Санузел – 4,74 кв.м.
Котельная – 4,63 кв.м.
Спальня – 11,60 кв.м.
Прихожая – 4,40 кв.м.
Крыльцо – 6,22 кв.м.
ПЛАН 2 ЭТАЖА
Спальня 1 - 13,02 кв.м.
Спальня 2 – 13,09 кв.м.
Балкон – 12.08 кв.м.
Мастер-спальня с санузлом – 23,8 кв.м.
Холл – 10,18 кв.м.
Санузел – 4,82 кв.м.
Планировка этажей может быть изменена в зависимости от пожелания заказчика.
Фундамент: утепленная шведская плита 300мм с ребрами жесткости 600мм;
Стены: толщина 300мм, газобетонный блок D500;
Внутренние несущие стены и перегородки: газобетонные блоки;
Фасад: фальцевые листы (с утеплителем 50 мм.) + термо-панели (с клинкерной плиткой) + термо-панели (натуральный камень) + дерево;
Остекление: Окна ПВХ 70мм с ламинацией цвет антрацит;
Стеклопакеты мультиплекс: энергоэффективные, светоотражающие;
Перекрытия: ЖБ плиты 220мм и монолит;
Высота потолков первого этажа: 3,4 м
Кровля: фальцовая металлочерепица + утепление 200мм. цвет графит;
Сроки реализации проекта: 2-3 месяца.
Понравился проект, оставьте заявку
ЭЛЕКТРОПРОВОДКА
Разводка скрытой электрики в гофротрубе (пожаробезопасно) Монтаж трасс электрических (от 55 точек) Устройство заземления Устройство распределительного силового щитка Монтаж защитной группы автоматики (до 36 механ.), вкл. автоматы, дифавтоматы, противопожарное УЗО, вводной выключатель Расширение базового УЗО до 70 модулей
КАНАЛИЗАЦИЯ
Разводка системы канализации (от 7 точек) Фановые стояки
КОТЕЛЬНАЯ ГРУППА
2-ух контурный котел Дымоход коаксиальный Расширительный бак Обвязка котла, система труб и подключение
ОТОПЛЕНИЕ
Разводка системы отопления (2-ух трубная система, от 12 точек) Радиаторы по проекту (стальн. профиль), установка, нижнее подключение
ВОДОСНАБЖЕНИЕ
Разводка системы холодного/горячего водоснабжения (тройниковая, от 12 точек) Установка водорозеток
ОТДЕЛКА
Установка внутренних не несущих перегородок, раскладка труб и кабеля
КОНТРОЛЬ
Проверка внутренней службой Пусконаладочные работы всех систем Гарантия Фото отчеты
Пожизненная гарантия
Ипотека 6%
Проектные работы
Цена: от 195 т.р.
Что включено:
• проект раздела АР
• проверка КД, КЖ (конструкторская работа)
• СПОЗУ - план посадки
• инженерно-геологическое заключение (шурфы) - опционально
• выезд инженера на посадку
• подтверждение точек ЗУ, работа кадастрового инженера
• отправка уведомления о начале строительства
• фиксация стоимости на 30 дней
Данная стоимость вычитается из итоговой сметы.
Порядок и сроки проведения работ

|
Двухэтажный дом 319 кв.м. Двухэтажный дом площадью 319 кв.м. с панорамным остеклением, в современном Европейском стиле отдаленно напоминающим стиль Лофт. Хотя проект и двухэтажный, но площадь первого этажа значительно больше второго. Из-за этого геометрия дома выглядит интереснее и сложнее. Основная идея этого дома, была сделать отдельную жилую площадь на первом этаже. В результате получилась независимая зона с двумя спальнями с собственным санузлом, гардеробной и даже выходом на участок.
|
|
Смысловым центром дома является, 60-метровая кухня-гостиная со вторым светом, панорамным остеклением и выходом на террасу. На кухне спроектирован остров для готовки, барная зона и большой обеденный стол.
Дом выглядит стильным и современным благодаря панорамному остеклению, фальцевой кровле, а также фиброцементным панелям и вертикальной декоративной доске на фасадах.
ПЛАН 1 ЭТАЖА
Кухня-гостинная – 64.92 кв.м.
Спальня 1 – 12,44 кв.м.
Спальня 2 – 12,66 кв.м.
Санузел 1 – 9,73 кв.м.
Кладовая – 6.79 кв.м.
Гардеробная – 8,93 кв.м.
Холл 1 5,51 кв.м.
Холл 2 – 6,86 кв.м.
Санузел 2 – 5,78 кв.м.
Постирочная – 6,3 кв.м.
Прихожая – 6,66 кв.м.
Котельная -7,42 кв.м.
Терраса 1 – 17,33 кв.м.
Терраса 2 – 25,94 кв.м.
Крвльцо 7,25 кв.м.
ПЛАН 2 ЭТАЖА
Спальня 1 – 18,34 кв.м.
Спальня 2 – 17,39 кв.м.
Гардеробна – 7,06 кв.м.
Санузел – 11,31 кв.м.
Холл – 21,79 кв.м.
Второй свет – 23,08 кв.м.
Планировка этажей может быть изменена в зависимости от пожелания заказчика.
Фундамент: утепленная шведская плита 300мм с ребрами жесткости 600мм;
Стены: толщина 300мм, газобетонный блок D500;
Фасад: утепление ПП 50мм + фиброцементные панели цвет серый (бетон) + вертикальная декоративная доска;
Остекление: Окна ПВХ 70мм с ламинацией цвет антрацит;
Стеклопакеты мультиплекс: энергоэффективные, светоотражающие;
Перекрытия: ЖБ плиты 220мм и монолит;
Высота потолков первого этажа: 3,4 м
Кровля: Фальцевая металлочерепица + утепление 200мм. цвет графит;
Сроки реализации проекта: 2-3 месяца.
Понравился проект, оставьте заявку
|
Дом в современном скандинавском стиле 209 кв.м. В этом проекте прослеживаются две основные идеи. Во первых — это легкость и органичность в архитектуре. Она достигается за счёт светлых фасадов, панорамного остекления и использования дерева в отделке. Во вторых — это гармония в пропорциях дома. Соотношение ширины к высоте дома и расположение конька кровли продумано по принципу «золотого сечения».
|
|
Компактный двухэтажный дом для комфортного для проживания небольшой семьи. В сочетании с архитектурой фасадов он будет уместно смотреться в любой среде, как на маленьком участке в плотном окружении домов, так и на большом участке среди природы.
На первом этаже расположились, просторная гостиная с выходом на террасу и отдельной зоной для кухни. Гостевая спальня (или кабинет), санузел и холл из которого можно попасть в постирочную и прихожую. Так же на первом этаже расположена котельная и предусмотрена дополнительная кладовая в подлестничном пространстве.
На втором этаже отведено место для просторной мастер-спальни с гардеробной и собственным выходом на балкон, а так же двух отдельных спален, кабинета и санузла с ванной.
ПЛАН 1 ЭТАЖА
Гостиная – 27,44 кв.м.
Кухня – 12,37 кв.м.
Терраса – 7,75 кв.м.
Холл – 12,41 кв.м.
Санузел – 6,56 кв.м.
Котельная – 6,24 кв.м.
Спальня – 12,88 кв.м.
Прихожая – 6,59 кв.м.
Кладовая – 6,04 кв.м.
Крыльцо – 6,20 кв.м.
ПЛАН 2 ЭТАЖА
Спальня с кладовой - 27,44 кв.м.
Балкон – 7.75 кв.м.
Спальня 2 – 20,03 кв.м.
Спальня 3 – 14,14 кв.м.
Кабинет – 8,47 кв.м..
Холл – 10,18 кв.м.
Санузел – 6,54 кв.м.
Планировка этажей может быть изменена в зависимости от пожелания заказчика.
Фундамент: утепленная шведская плита 300мм с ребрами жесткости 600мм;
Стены: толщина 300мм, газобетонный блок D500;
Внутренние несущие стены и перегородки: газобетонные блоки;
Фасад: Штукатурка (с утеплителем 50 мм.) + дерево;
Остекление: Окна ПВХ 70мм с ламинацией цвет графит;
Стеклопакеты мультиплекс: энергоэффективные, светоотражающие;
Перекрытия: ЖБ плиты 220мм и монолит;
Высота потолков первого этажа: 3,4 м
Кровля: металлочерепица + утепление 200мм. цвет графит;
Сроки реализации проекта: 2-3 месяца.
Понравился проект, оставьте заявку